

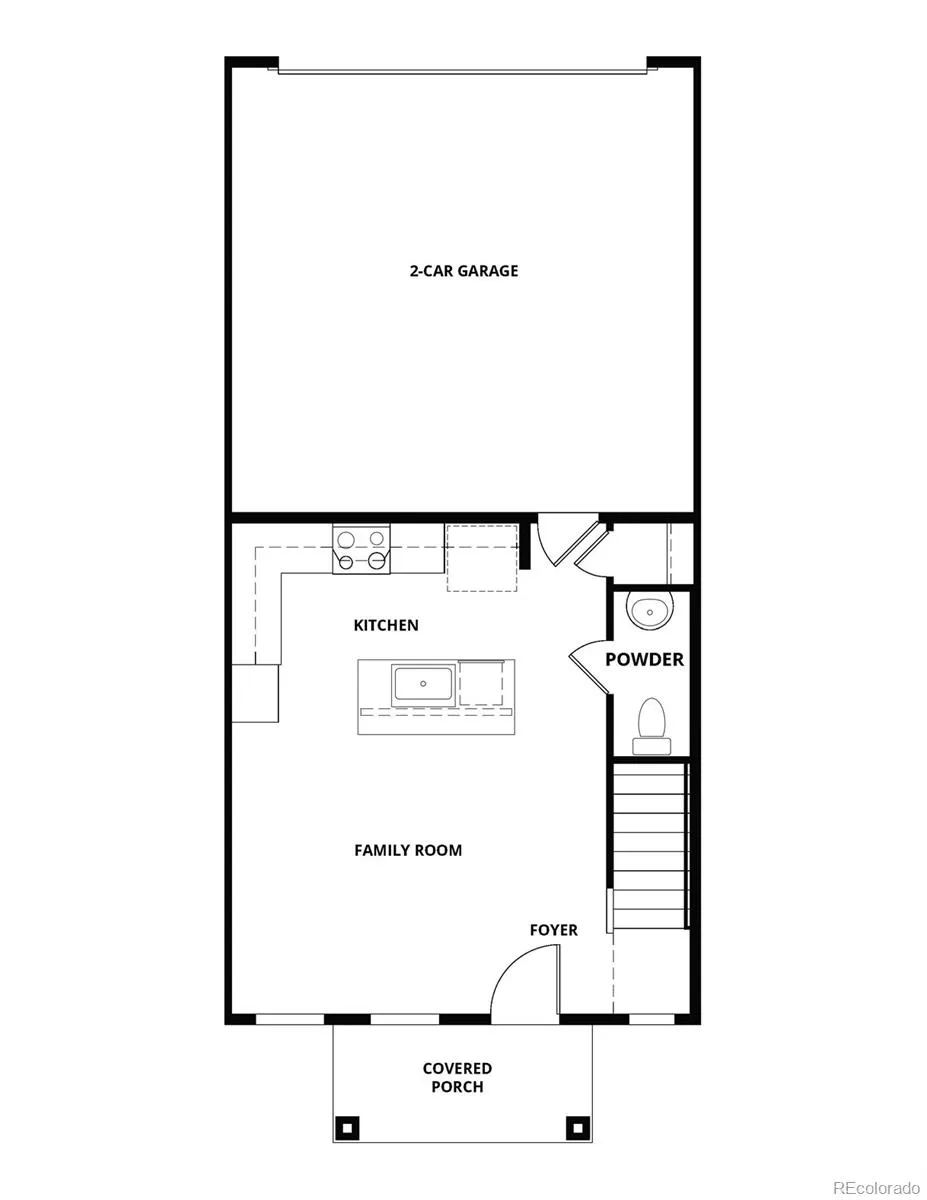
Welcome to this two-story townhome offering a thoughtfully designed open concept layout. The upgraded kitchen features white cabinetry, granite countertops, and a spacious island that overlooks the dining and living areas, creating an ideal setting for both everyday living and entertaining. Upstairs, all three bedrooms are conveniently located together with two full bathrooms and an upstairs laundry closet, providing comfort, functionality, and ease of living throughout the home.
Based on information submitted to the MLS GRID as of 2026-02-06 22:40:19 UTC. All data is obtained from various sources and may not have been verified by broker or MLS GRID. Supplied Open House information is subject to change without notice. All information should be independently reviewed and verified for accuracy. Properties may or may not be listed by the office/agent presenting the information.
Last Updated: . Source: RECOLORADO
Provided By
Listing Agent: Kevin Wolf (#REC55053325), Phone: 720-822-6841, Email: Kevinwolf1033@yahoo.com
Listing Office: LGI Realty - Colorado, LLC (#RECM9945)

Get an estimate on monthly payments on this property.
Note: The results shown are estimates only and do not include all factors. Speak with a licensed agent or loan provider for exact details. This tool is sourced from CloseHack.